020 7359 4493

RECEPTION ROOM
KITCHEN & RECEPTION
KITCHEN & RECEPTION
KITCHEN & RECEPTION
BEDROOM 1
BEDROOM 1
BEDROOM 2
BATHROOM
HALLWAY
PRIVATE GARDEN
PRIVATE GARDEN
PRIVATE GARDEN
EXTERIOR

** Virtual Tour Available **

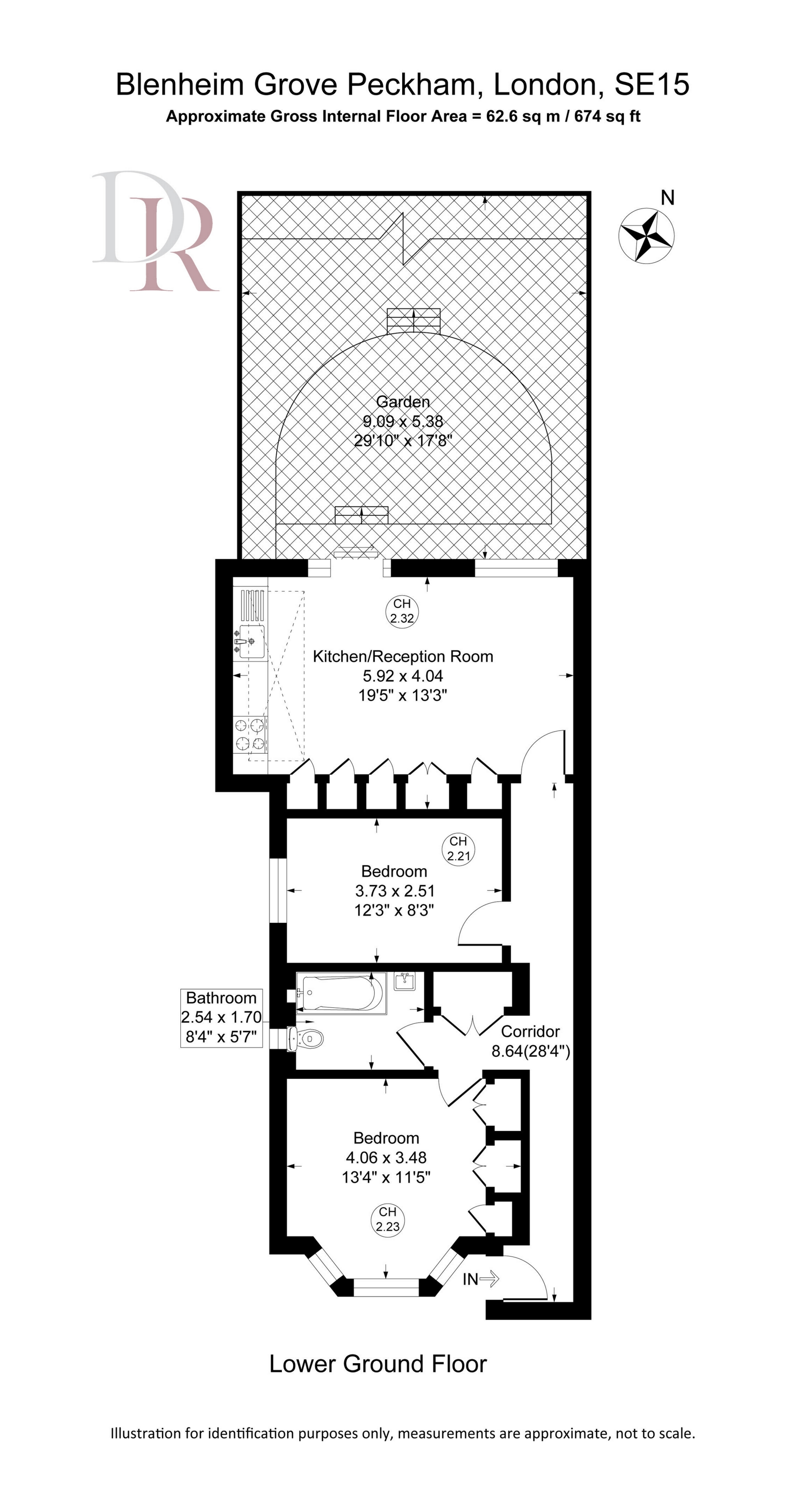
2 Bedroom Flat (674 sq.ft.)

Unfurnished

Private Patio Garden

Wood Floors

Gas Central Heating

Modern Fully Fitted Kitchen

Modern Bathroom

Private Entrance

Private Parking Place

** Virtual Tour Available **

This Superb 2 Bedroom Garden Flat (674 sq. ft.) has its own entrance and is located only moments from Peckham Rye Train and Overground Station, local shops, cafes, pubs and restaurants.

It has been recently decorated throughout and offers large bedroom with fitted wardrobe, 2nd smaller bedroom / home study, modern bathroom, open plan reception room and fully fitted & modern kitchen.

The property further benefits from wood flooring, gas central heating, double glazed windows in the rear part of the property and northeast facing private rear patio garden.

Available Unfurnished

Council Tax: Southwark Council - Band B / £1,460.59 per annum
Minimum Term: 12 months
EPC Rating: C
Security Deposit: £2,475.00 - equivalent to 5 weeks of rent


Available
Arrange a Viewing
This property is currently Let Agreed. However, register your details below and we will contact you if it becomes available again.
Floor Plan 1

IMPORTANT NOTICE

Descriptions of the property are subjective and are used in good faith as an opinion and NOT as a statement of fact. Please make further specific enquires to ensure that our descriptions are likely to match any expectations you may have of the property. We have not tested any services, systems or appliances at this property. We strongly recommend that all the information we provide be verified by you on inspection, and by your Surveyor and Conveyancer.