Sold Hemingford Road, Barnsbury, London, N1 Guide Price £1,550,000
FREEHOLD
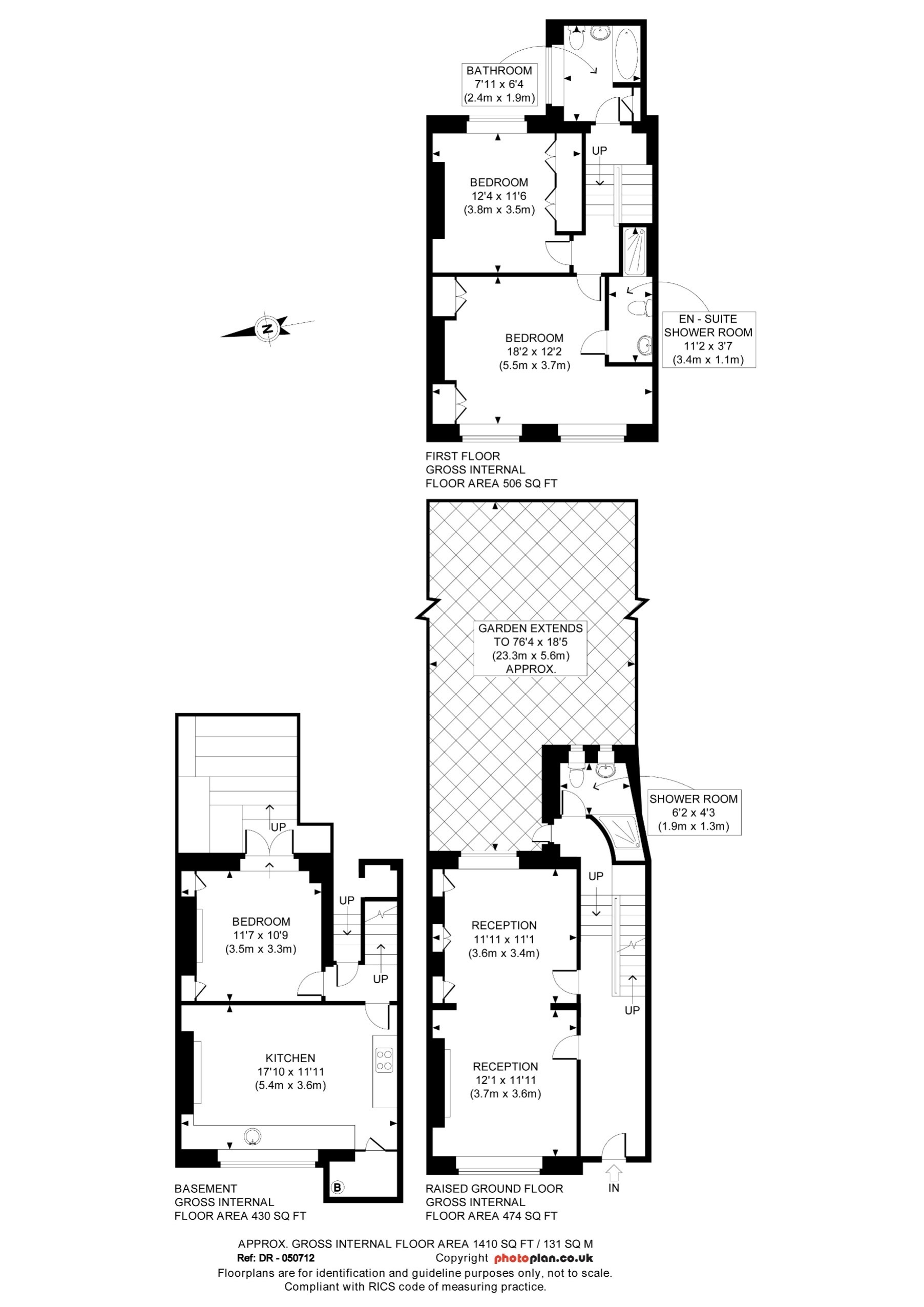
THREE DOUBLE BEDROOMS
DOUBEL RECEPTION ROOM
LARGE ENTRANCE HALL
FULLY FITTED EAT-IN KITCHEN
THREE MODERN BATHROOMS
76FT REAR GARDEN
EXCELLENT LOCATION
1410 SQ FT
EPC Rating D
Council Tax Band G, Islington
Freehold
A very well presented 3 Storey Victorian flat fronted terraced house, presented in good decorative order throughout. The property boasts 3 double bedrooms. 24ft through reception room with wooden flooring and a beautiful period fireplace, fully fitted kitchen, 3 modern bathrooms and a wonderful 76ft x 18ft rear garden. The house also has the advantage of high ceilings on both the ground and first floors as well as wooden flooring.
Hemingford Road is located in the heart of Barnsbury and is conveniently located close to Upper Street, with its many shops, restaurants & bars. The nearest stations are Caledonian Road & Barnsbury (overground) and equal distance between both Angel and Highbury & Islington Underground, with good links into both the City and West End.
IMPORTANT NOTICE
Descriptions of the property are subjective and are used in good faith as an opinion and NOT as a statement of fact. Please make further specific enquires to ensure that our descriptions are likely to match any expectations you may have of the property. We have not tested any services, systems or appliances at this property. We strongly recommend that all the information we provide be verified by you on inspection, and by your Surveyor and Conveyancer.































