Sold Poets Road, Newington Green, London, N5 Guide Price £550,000
PRIVATE GARDEN
SPACIOUS
SUPERB LOCATION
MODERN BATHROOM
WOOD FLOORING
PRIVATE ENTRANCE
LONG LEASE
FITTED KITCHEN
EPC Rating D
Council Tax , Islington
Leasehold
101 Lease Years Remaining
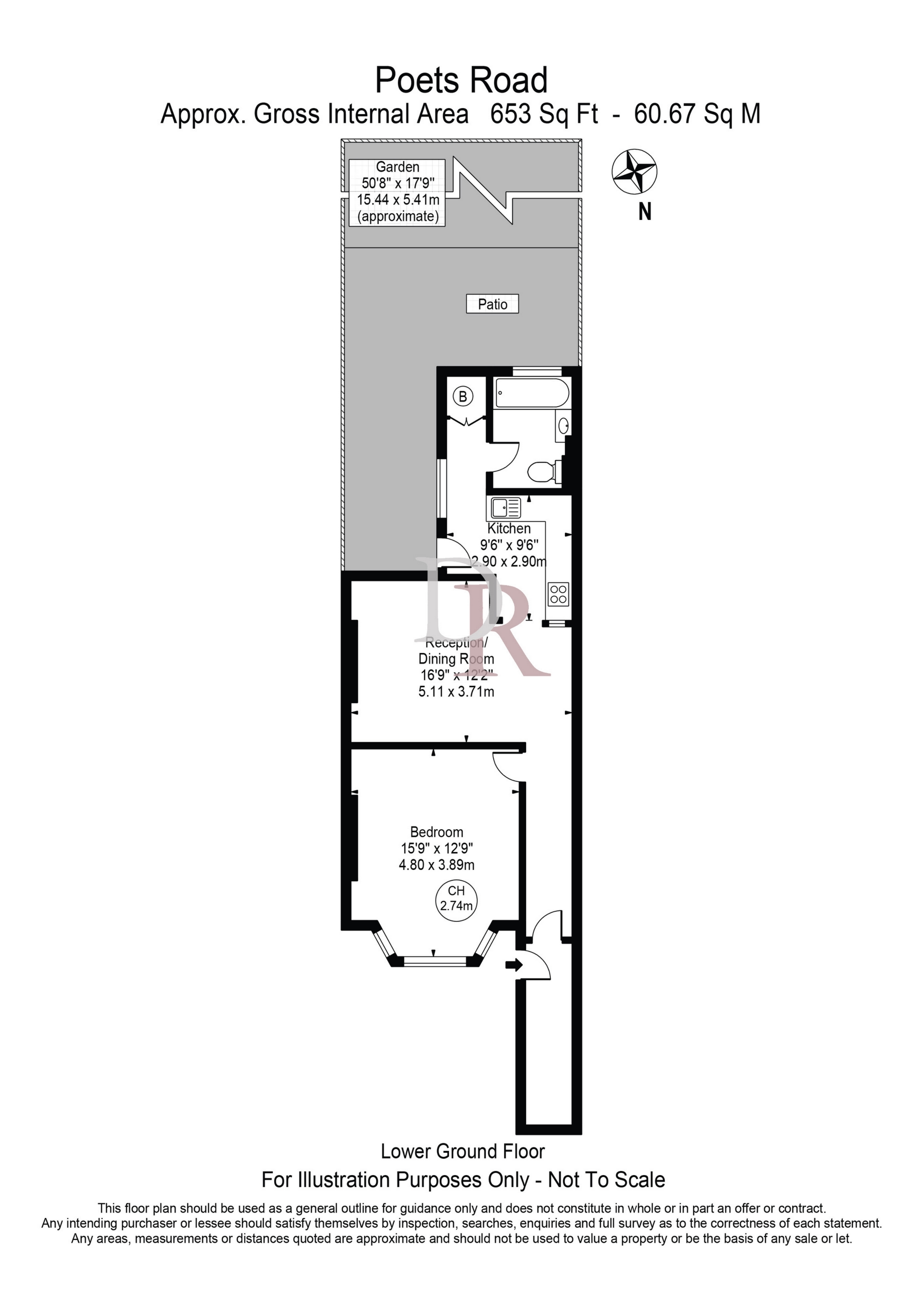
Within an attractive 3 storey Victorian bay fronted terraced house. An extremely spacious (653 sq/ft) one bedroom lower ground floor flat having the benefit of its own private entrance and a 50ft rear garden.
Poets Road is located just off Petherton Road. Good shops and transport facilities can be found close by at either Newington Green or Highbury Barn. The nearest station is Canonbury (London Overground) with links into both the City and West End.
IMPORTANT NOTICE
Descriptions of the property are subjective and are used in good faith as an opinion and NOT as a statement of fact. Please make further specific enquires to ensure that our descriptions are likely to match any expectations you may have of the property. We have not tested any services, systems or appliances at this property. We strongly recommend that all the information we provide be verified by you on inspection, and by your Surveyor and Conveyancer.

















